EspañolPortugués
top frentes parrilleros
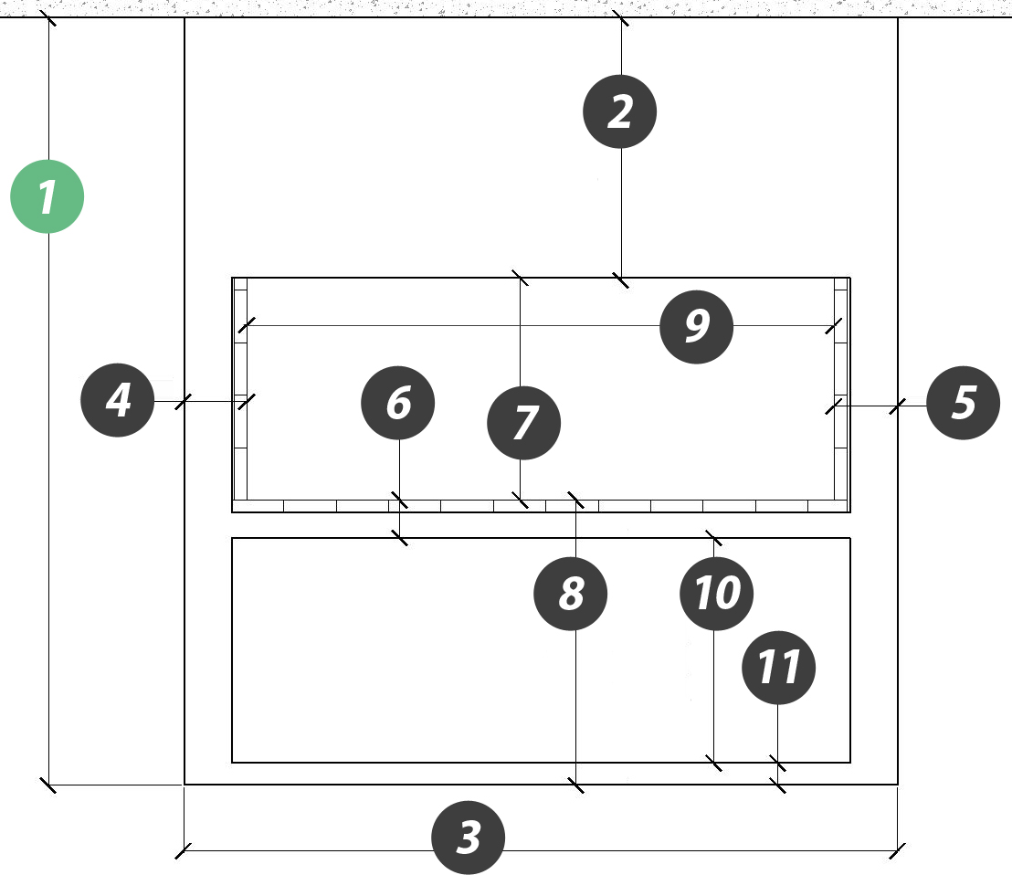
ARMALO A TU MEDIDA
ARMÁ TU PARRILLERO A NUESTRA MEDIDA

Medida 01:
Altura total del Parrillero: desde el piso al techo (medida en milimetros)

01 mm.

Medida 02:
Altura Superior Parrillero: desde línea superior (dintel) al techo (medida en milímetros)

02 mm.

Medida 03:
Frente total del Parrillero: desde borde izquierdo exterior al borde derecho exterior del total del Parrillero. (medida en milímetros)

03 mm.

Medida 04:
Ancho de Columna Izquierda: espesor de la pared izquierda que sostiene la losa del parrillero (medida en milímetros)

04 mm.

Medida 05:
Ancho de Columna Derecha: espesor de la pared derecha que sostiene la losa del parrillero (medida en milímetros)

05 mm.

Medida 06:
Alto de Piso de Parrilla: desde el Piso de Espacio de Parrilla a parte superior del Espacio de Almacenamiento Inferior de Parrillero (medida en milimetros)

06 mm.

Medida 07:
Altura de Espacio de Parrilla: desde el piso de Parrilla (refractarios) al borde superior (dintel) del espacio de parrilla (medida en milimetros)

07 mm.

Medida 08:
Altura de piso a refractarios: distancia desde el piso al borde superior de los ladrillos refractarios de la parrilla (medida en milímetros)

08 mm.

Medida 09:
Amplitud de boca de cocción: Es el largo del espacio de parrilla real y útil entre ambas columnas. (medida en milímetros)

09 mm.

Medida 10:
Altura de Espacio de Almacenamiento Inferior: desde el piso de la banquina/zócalo a la parte inferior de la losa del parrillero (medida en milímetros)

10 mm.

Medida 11:
Altura Zócalo: desde el piso al borde superior de la banquina/zócalo (medida en milímetros)

11 mm.

Medida 12:
Profundidad de Parrilla: Vista perfil del parrillero (medida en milimetros)

12 mm.

Medida 13:
Profundidad de Espacio de Almacenamiento: Vista perfil del parrillero (medida en milimetros)

13 mm.

Foto de Muestra
No mayor a 1mb.

Accesorios:
Marcá el que deseas incluir















Información Personal: